
Topographic Survey
Manitowoc, Wisconsin
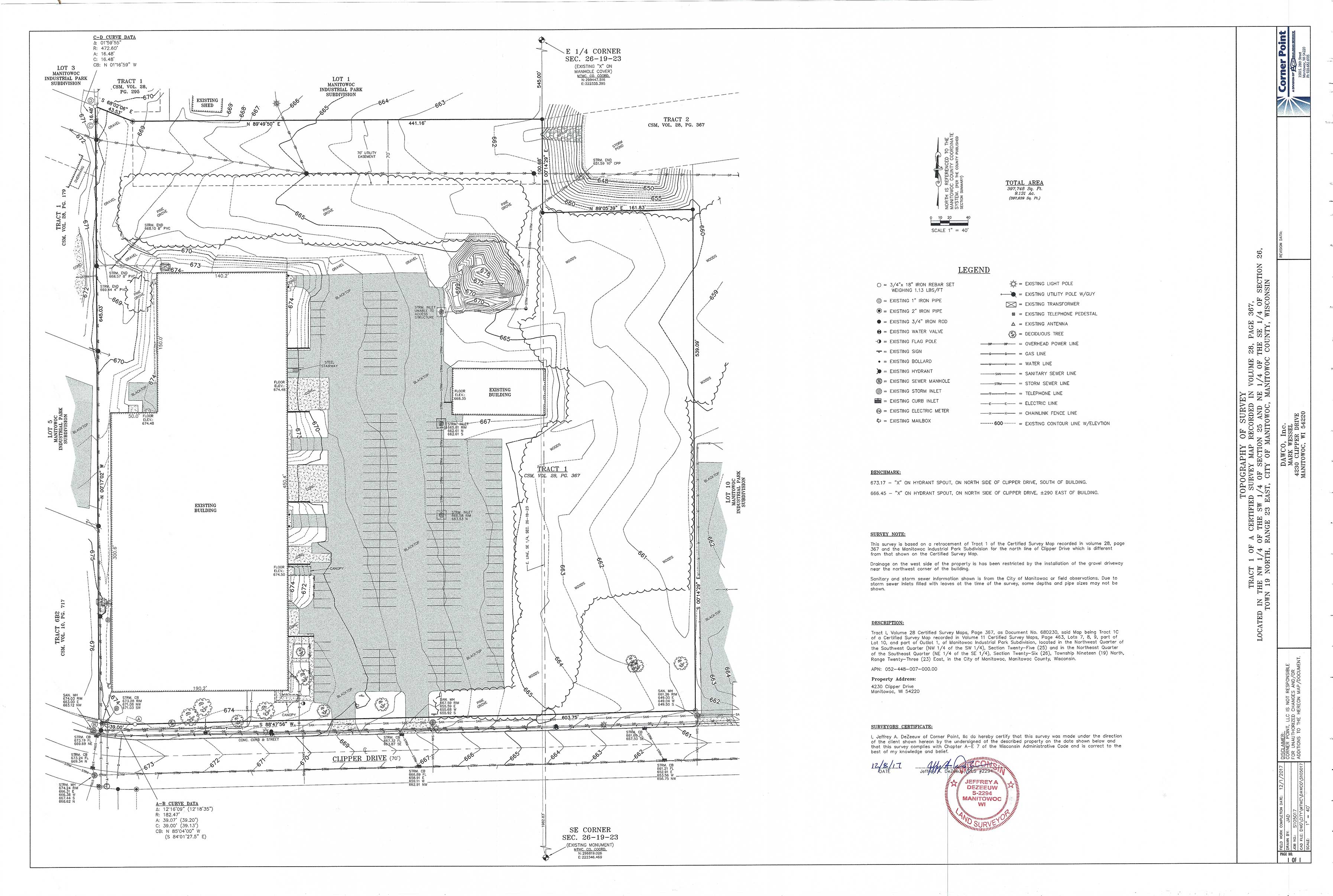
Dawco Inc., of Manitowoc, engaged Corner Point to provide them with a topography survey of their facility in the City of Manitowoc Industrial Park.
A.C.E. Building Service offers design/build commercial and industrial construction services throughout Northeast Wisconsin and is the exclusive Butler Builder for the lakeshore from Sheboygan to Door County.