
ALTA Survey
Manitowoc, Wisconsin
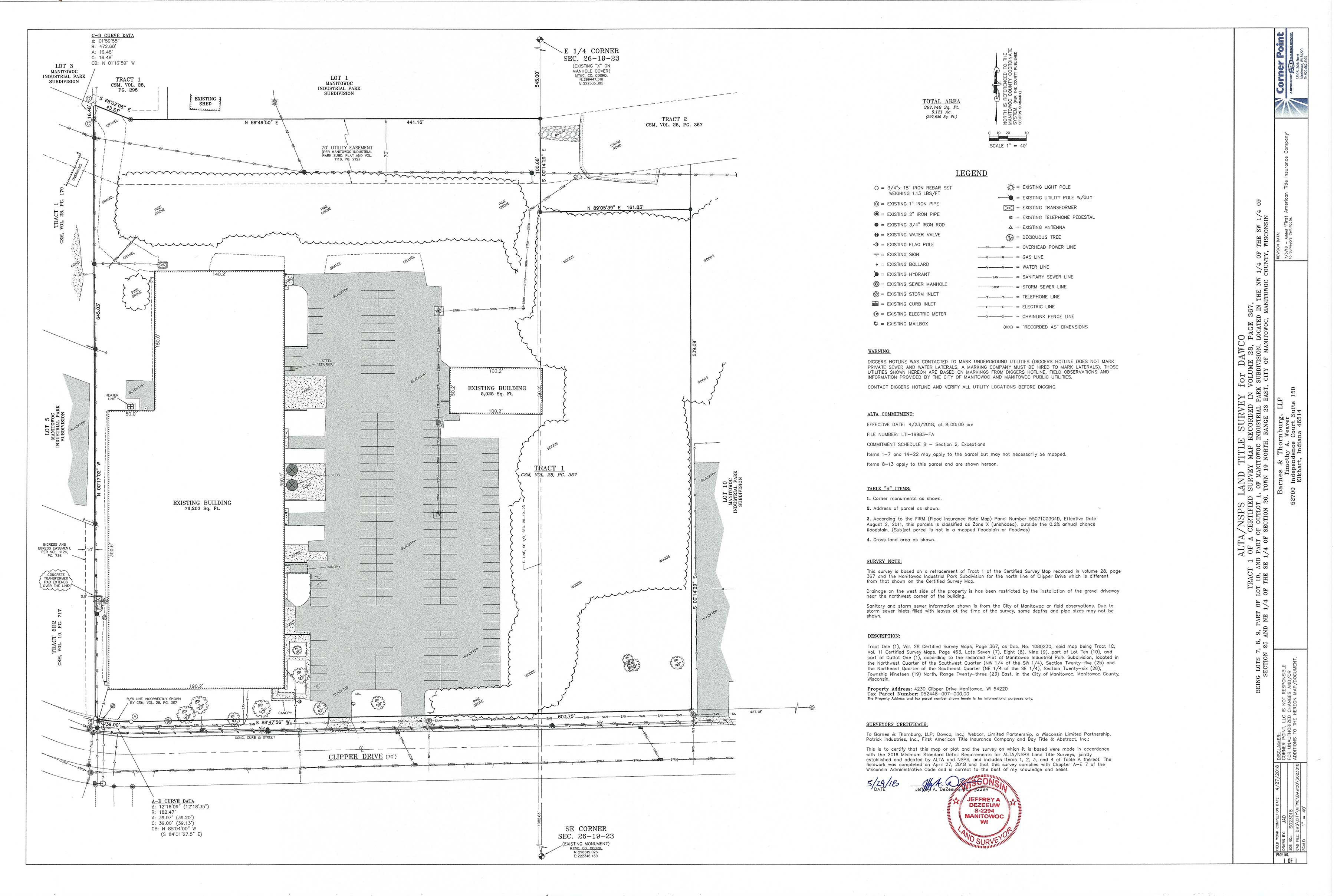
Dawco Inc., of Manitowoc, engaged Corner Point to provide them with an ALTA survey of their facility in the City of Manitowoc Industrial Park. The purpose of the survey was to provide the client with an assessment of the improvements on the property, for use by title companies or commercial lenders.
A.C.E. Building Service offers design/build commercial and industrial construction services throughout Northeast Wisconsin and is the exclusive Butler Builder for the lakeshore from Sheboygan to Door County.